Gjerdrums vei 11 – Nydalen
Prisgunstige lokaler i Nydalen med god profilering mot Ring 3. Kontorlokalene i 4. etg. er i dag innredet med åpent kontorlandskap i tillegg til flere cellekontorer og teamrom. Lokalet har god standard med mye lys, fin utsikt, og kan flyttes rett inn i. Eiendommen planlegges videreutviklet på sikt (minimum 5 år) og gårdeier ønsker derfor å leie ut lokalene mest mulig as-is.
Type lokale: Kontor
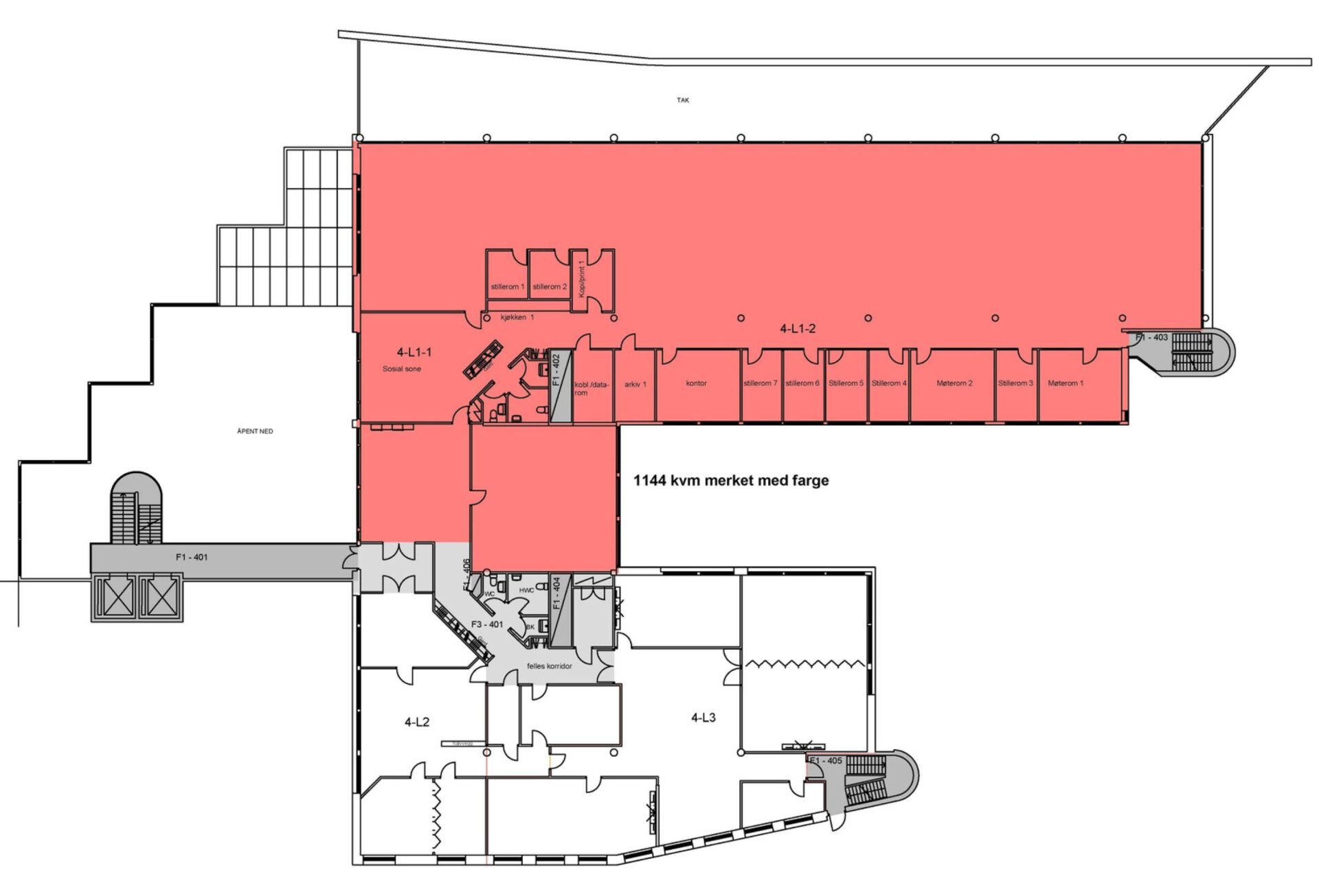
Areal: 1 104 m²
Etasje: 4.
Byggeår: 2010
Fasiliteter:
• Garasje/P-plass
• Heis
• Kjøreport
Beskrivelse
Lokalet byr på god standard med rikelig naturlig lys, fin utsikt, og er klart til bruk umiddelbart. Avantor imøtekommer ønsker om å påvirke utforming og standard, men i utgangspunktet ønsker Avantor å leie ut disse lokalene mest mulig as is, da det vurderes om eiendommen skal gjennom en stor rehabilitering og påbygging/modernisering.
Galleri – Gjerdrums vei 11













Beliggenhet
Nydalen har blitt et attraktivt og levendesentrum for bydel Nordre Aker i Oslo. Kombinasjonen av urbane og landlige kvaliteter gjør Nydalen helt unik. Nydalen har de siste årene opparbeidet seg en status som knutepunkt i Oslo. Bydelens raske fremvekst har gjort den til et svært populært sted å bo, studere eller arbeide. Gjerdrums vei 11 ligger meget sentralt plassert i Nydalen og har kort vei til alt Nydalen har å by på.
Nydalen – et lite sentrum i sentrum
Våre kontorer har en unik beliggenhet i eller nær sentrum av Nydalen, med kort vei til Vertikal Nydalen, Torgbygget, Raddisson Blu Hotell, Handelshøyskolen BI og en rekke kafeer, restauranter, utesteder, forretninger, treningssentre og boliger. Området utgjør et naturlig sentrum i Nydalen, med et sydende folkeliv døgnet igjennom.













Et kollektiv-knutepunkt
Nydalen er et spennende alternativ for både små og store bedrifter som ønsker egne, skreddersydde lokaler med nærhet til både Oslo sentrum og sentrale kommunikasjonsårer. Tilgjengeligheten med T-banestasjon, taxiholdeplass, buss- og togforbindelse, samt Ring 3 rett ved, gjør Nydalen meget attraktiv.
Ta kontakt
Elise Bratt-Aanensen
Salgssjef
Nydalen – fra nedlagt industri til yrende liv
Avantor utvikler ikke bare boliger og næringsbygg, men bygger samfunn og skaper trygge og gode nabolag på en solid og bærekraftig måte.
Det startet med et mål om å utvikle eiendom for hodet og hjertet. Dette tankesettet har gjort oss til en byutvikler som jobber for å utvikle områder, steder og eiendommer det er lett å ha det godt i. I dag eier Avantor mer enn 250.000 kvm eiendom, og har utviklet mer enn 600 000 kvm næringslokaler. Gjennom utviklingen av Nydalen de siste 25 årene, har gammel industri blitt til et levende samfunn der unge og gamle kan bo, studere, jobbe og leve gode liv.
Flere ledige lokaler
Gjerdrums vei 4
Type lokale: Kontor
Areal: 326–2 776 m²
Etasje: 1., 2. og 3.
Byggeår: 2011
Nydalsveien 12
Type lokale: Kontor
Areal: 365 - 1 624 m²
Etasje: 3. og 4.
Nydalsveien 12 er mer enn bare et kontorbygg. Med nyoppussede fellesarealer, en innbydende kantine, garderober, innendørs sykkelparkering, og en parkeringsgarasje, har du alt du trenger samlet på ett sted.
Nydalsveien 28
Type lokale: Kontor
Areal: 810 - 1 700 m²
Etasje: 4. og 8.etg.
Midt i Nydalen, kun 1 minutt unna t-banen ligger Nydalsveien 28. Eiendommen er på totalt 22 500 kvm fordelt på 13 etasjer. Bygget ble totalrehabilitert i 2016 og fremstår som helt nytt, både utvendig og innvendig.
Gullhaug Torg 2
Type lokale: Kontor
Areal: 631 m²
Etasje: 6.
Velkommen til Vertikal Nydalen, et bygg som er utviklet av Avantor og tegnet av Snøhetta. Dette er et banebrytende miljøbygg som setter en ny standard for nybygg, forhåpentligvis til inspirasjon og etterfølgelse av andre.
Nydalsveien 30 A
Type lokale: Kontor/showroom
Areal: 350 m²
Etasje: 4.
Nydalsveien 33
Type lokale: Butikk
Areal: 261 m²
Etasje: 1.
Midt i Nydalen, over T-banestasjonen, finner du Torgbygget. I bygget finner du et stort utvalg service- og handelsvirksomheter samt gode spisesteder/kafeer for rask eller langsom mat og drikke.